Büro mieten in Weingarten
In der Herkner Straße 4 im nördlichen Gewerbegebiet von Weingarten befindet sich unser Business Center „Herkner Straße“. Der Komplex, der verkehrstechnisch ideal an die L314 sowie die B30 angebunden ist, umfasst drei Gebäude: eine Lagerhalle mit rund 300 Quadratmetern sowie zwei moderne, zweigeschossige Bürohäuser mit jeweils etwa 400 Quadratmetern Nutzfläche. Darüber hinaus stehen 13 helle und saubere Storage-Boxen mit Größen zwischen 9 und 14 Quadratmetern zur Vermietung bereit. Neben Lager- und Serviceflächen bieten wir voll ausgestattete Einzelbüros mit einer Fläche von 13 bis 23 Quadratmetern zur Miete an.
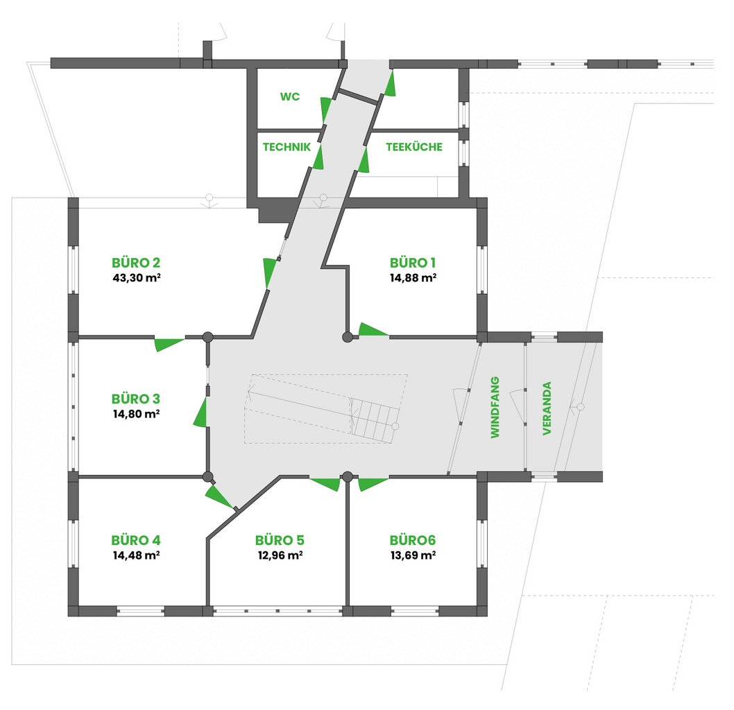
Bürohaus OST
Eine kleine, kompakte Bürohauseinheit mit einem Erdgeschoss und erstem Obergeschoss. Das Gebäude ist aus dem Jahre 1996 und wurde 2025 eine umfassenden Sanierung (Böden, Elektrik usw…) unterzogen.
Im Erdgeschossen befinden sich 7, kompakte und voll ausgestattete Büroeinheiten zwischen 12 und 44 qm².
Im 1. Obergeschoss sind weitere 5 Einzelbüroeinheiten zwischen 13 und 22 qm². Die Büros sind teilweise auch mit Kühlung und Beschattungssystem ausgestattet.
Zum Leistungsumfang zählen auch Internetanschluss und Stromversorgung. Parkplätze stehen im Außenbereich zur Verfügung. Jeder kann sich am Einfahrtspylon mit seinem firmenlogo sichtbar machen. Auch eine hochwertige Briefkastenlage steht ei Bedarf zur Verfügung.
| Büro | Verfügbarbarkeit | Anfrage | m2 |
| 1 | vermietet | 14,88 | |
| 2 | vermietet | 43,30 | |
| 3 | vermietet | 14,80 | |
| 4 | vermietet | 14,48 | |
| 5 | vermietet | 12,96 | |
| 6 | vermietet | 13,69 | |
| 7 | frei | 13,69 | |
| 8 | vermietet | 16,69 | |
| 9 | vermietet | 14,62 | |
| 10 | vermietet | 21,09 | |
| 11 | vermietet | 21,09 |
* Nettopreise pro Nutzungsmonat inkl. aller Nebenkosten
* Ab einer Festlaufzeit von zwei Jahren gewähren wir nach Absprache gerne einen Laufzeitbonus.
Bürohaus WEST
Das Bürohaus im westlichen Bereich der Grundstücksfläche ist im Jahre 2007 erbaut.
Die technische Ausstattung ist auf höchstem Niveau. Die Räume sind mit Akustikdecken, LED Beleuchtung, IT CAT 6 Verkabelung in Bodentanks, bodentiefe Fenster und Klimatisierung ausgestattet. Es gibt einen klimatisierten Serverraum. Ein Gründach für ausgeglichenes Klima im OG. Stellplätze für Mitarbeiter sind vorhanden. Ansprechende sanitäre Einrichtungen, Teeküchen und ein großer Schulungs- bzw. Versammlungsraum
| Büro | Verfügbarbarkeit | Anfrage | m2 |
| 12-1 | vermietet | 31,58 | |
| 12-2 | vermietet | 28,70 | |
| 13 | vermietet | 22,19 | |
| 14 | vermietet | 21,99 | |
| 15 | vermietet | 21,53 | |
| 16 | vermietet | 21,52 | |
| 17 | vermietet | 21,99 | |
| 18 | vermietet | 21,84 |
* Nettopreise pro Nutzungsmonat inkl. aller Nebenkosten
* Ab einer Festlaufzeit von zwei Jahren gewähren wir nach Absprache gerne einen Laufzeitbonus.






